Parte importante del trabajo fue distribuir racionalmente el espacio e incorporar elementos del inmueble existente al nuevo diseño. Explica el estudio con sede en Girona que el principal desafío fue “adecuar la distribución funcional de los dos apartamentos, aprovechar la esencia de la construcción original con paredes de piedra y forjados con revoltones, ejecutando el diseño del mobiliario y la elección de los revestimientos, y enfatizando la búsqueda de la mínima expresión, máxima racionalidad y cuidado de los acabados“.
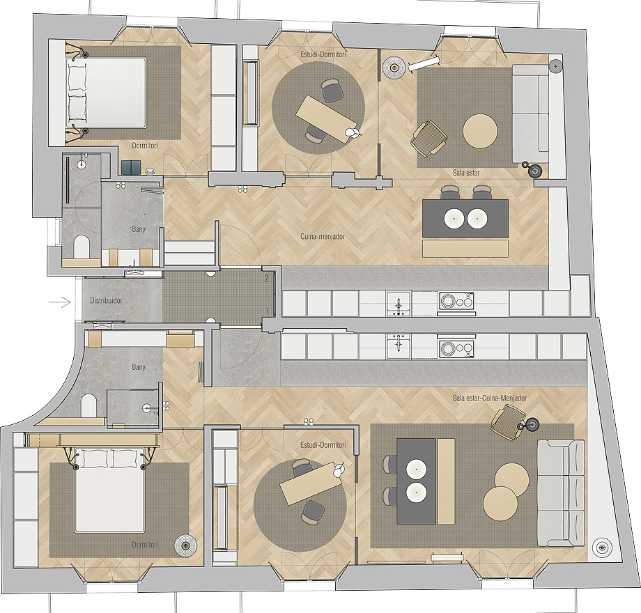
Distribución racional.
A los apartamentos se accede a través de un vestíbulo común en el que se ha aprovechado la altura máxima permitida por las instalaciones y se ha creado un espacio diáfano con iluminación indirecta. El espacio central de los apartamentos es la sala de estar-comedor-cocina de concepto abierto, donde el mobiliario, diseñado conjuntamente con la iluminación indirecta, ayuda a crear un ambiente sereno. También disponen de una zona de estudio-dormitorio, ubicada junto al salón y conectada a éste a través de un cerramiento transparente de suelo a techo, cuya presencia queda determinada por su ligera estructura de acero en color negro.
Ambiente sereno.
A este clima tranquilo ha contribuido la cuidadosa selección de materiales: pavimento de madera de roble natural dispuesto en espiga, que proporciona un aire más clásico, piedra tipo St. Vicenç y cemento pulido. En el mobiliario general, se ha utilizado tablero multicapa acabado en HPL Fénix, un laminado de alta presión extremadamente resistente, mientras que en los muebles de cocina y en las puertas de ambientes divisores interiores se ha elegido DM acabado lacado.
Ambiente sereno.
A este clima tranquilo ha contribuido la cuidadosa selección de materiales: pavimento de madera de roble natural dispuesto en espiga, que proporciona un aire más clásico, piedra tipo St. Vicenç y cemento pulido. En el mobiliario general, se ha utilizado tablero multicapa acabado en HPL Fénix, un laminado de alta presión extremadamente resistente, mientras que en los muebles de cocina y en las puertas de ambientes divisores interiores se ha elegido DM acabado lacado.
Por último, concluye el estudio, la paleta de colores “se trabajó en una gama de gris oscuro y blanco que cohabitan con el acabado de paredes de piedra existente, definiendo un zócalo que cose y recorre los ambientes. Además, se respetaron las pinturas originales en los revoltones existentes, realizando un trabajo de protección y conservación.”
Para más información visiten: Maite Prats



















No hay comentarios:
Publicar un comentario