En la búsqueda de formas de mejorar la experiencia de los visitantes para un número cada vez mayor de invitados, el equipo de Jack Daniel’s lanzó una campaña de mejora que abarca varias de las propiedades de acceso público en la destilería. Entre los proyectos se encontraba el de convertir su antigua casa de barriles, construida en 1938, en una experiencia de muestreo de whisky sin igual.
Para crear esta experiencia y cumplir con el compromiso de la marca con la autenticidad, el proyecto se convertirá necesariamente en un híbrido: parte activa de la Casa barril donde el whisky real está madurando y en parte un ambiente de muestreo refinado donde aquellos que conocen profundamente el whisky pueden compartir conocimiento con otros asistentes en un ambiente íntimo. El diseño fomenta la interacción y el intercambio entre quienes conocen, viven y trabajan en el condado de Moore y visitantes de todo el mundo que buscan más conocimiento sobre la marca Jack Daniel's. Dentro de estas demandas aparentemente contradictorias, la renovación de esta histórica Casa barril encontró su forma.
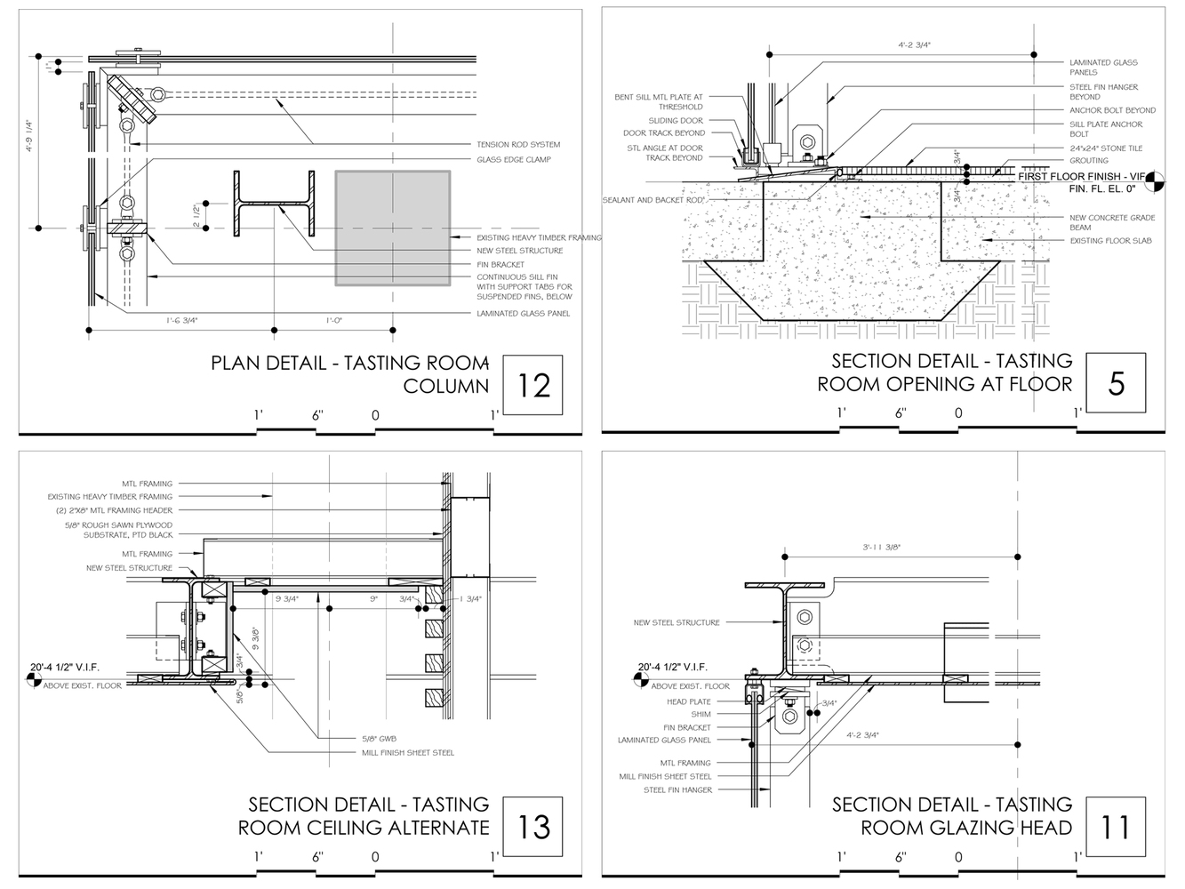
Yuxtaponiendo el robusto edificio con entramado de madera pesada con los detalles exactos de un sistema de estructura de acero y vidrio, el diseño reúne la autenticidad histórica y funcional de la Casa barril con detalles adecuados para visitantes contemporáneos que mantienen una conversación cercana.
Ingresando desde el este, los visitantes llegan a la parte de la Casa barril donde se guarda cuidadosamente el whisky de Jack Daniel's para alcanzar la madurez. Más abajo, en el corredor central, los visitantes ingresan a un espacio abierto de tres pisos con mucha luz natural. Cuidadosamente colocados dentro de los huecos creados por los bastidores de barriles, dos altos volúmenes de vidrio son apoyados por finos montantes de acero. Sus altos muros están interrumpidos solo por la estructura de madera existente, entrelazada. Rodeando el pasillo principal, estos pabellones de vidrio ofrecen áreas de degustación íntimas y civilizadas que viven en marcado contraste con la estética industrial de 1930 del edificio circundante. El lado oeste del proyecto se ha despejado para crear un espacio de tres pisos más grande diseñado para dar cabida a degustaciones de grupos turísticos adicionales o eventos a gran escala.
Al cruzar el último umbral, los visitantes se encuentran con la vista familiar del Centro de Visitantes Jack Daniel's: el punto de origen de todos los tours de destilería. Aquí los huéspedes tendrán la oportunidad de explorar más a fondo, recoger una botella personalizada de la tienda de regalos y mezclarse con muchas de las personalidades que continúan haciendo del whisky Tennessee de Jack Daniel's el icono estadounidense que es.
Ingresando desde el este, los visitantes llegan a la parte de la Casa barril donde se guarda cuidadosamente el whisky de Jack Daniel's para alcanzar la madurez. Más abajo, en el corredor central, los visitantes ingresan a un espacio abierto de tres pisos con mucha luz natural. Cuidadosamente colocados dentro de los huecos creados por los bastidores de barriles, dos altos volúmenes de vidrio son apoyados por finos montantes de acero. Sus altos muros están interrumpidos solo por la estructura de madera existente, entrelazada. Rodeando el pasillo principal, estos pabellones de vidrio ofrecen áreas de degustación íntimas y civilizadas que viven en marcado contraste con la estética industrial de 1930 del edificio circundante. El lado oeste del proyecto se ha despejado para crear un espacio de tres pisos más grande diseñado para dar cabida a degustaciones de grupos turísticos adicionales o eventos a gran escala.
Al cruzar el último umbral, los visitantes se encuentran con la vista familiar del Centro de Visitantes Jack Daniel's: el punto de origen de todos los tours de destilería. Aquí los huéspedes tendrán la oportunidad de explorar más a fondo, recoger una botella personalizada de la tienda de regalos y mezclarse con muchas de las personalidades que continúan haciendo del whisky Tennessee de Jack Daniel's el icono estadounidense que es.
Para más información visiten: Clickspring Design























No hay comentarios:
Publicar un comentario