¿Sabía que el tamaño medio de los pisos españoles oscila entre los 60 y 80 metros cuadrados? No es mucho, pero es suficiente para crear espacios confortables y bien decorados, sobre todo, como en este piso que les traemos hoy, si lo comparte sólo una pareja. La casa cuenta con un amplio salón con un rincón de estudio, cocina con comedor, un aseo y un baño completo, y el dormitorio principal con su propio vestidor.
El salón con rincón de trabajo
El salón y la cocina con comedor están ubicados hacia el exterior de la vivienda, en un amplio espacio de 36 metros cuadrados y divididos por un tabique con dos vanos, de manera que ambas zonas están comunicadas visualmente pero, a la vez, delimitadas. La decoración, joven y funcional, se basó en colores claros y naturales: blanco, gris piedra y beige arena, con suelo y mobiliario de madera clara, lo que potencia la calidez. Unos toques de color en tapicerías y adornos alegran el resultado final.

La entrada
Una de las claves de esta reforma ha sido el aprovechamiento máximo de los espacios como zona de almacén. Para la entrada, por ejemplo, se realizó una especie de cubo de listones de madera, que hace de esta pequeña zona un espacio independiente para recibir al visitante. Aquí, además, se realizó un armario a la vista, para colgar los abrigos, y el suelo se revistió de baldosas decorativas con el objetivo de darle un carácter personal y único al vestíbulo.

Tabiques divisorios
En esta imagen se puede apreciar claramente la función que tienen los tabiques entre el salón y la cocina. Son elementos divisorios, pero que permiten la comunicación visual entre los espacios. El tabique más pequeño funciona también como elemento decorativo, revestido con un papel pintado en tono azul grisáceo, que se repite también en la pared del comedor. Del lado del salón se colocó un mueble antiguo, y en el lado de la cocina se realizó un mural con pintura de pizarra imantada.

Cocina con comedor
Al ser sólo una pareja, se decidió prescindir del tradicional comedor, y colocar una mesa en la cocina, que contaba con suficiente espacio. No obstante, se le quería dar cierto relieve decorativo, por lo que la pared donde se encuentra se revistió con papel pintado para diferenciar esta zona de la de cocción. Todo el mobiliario es blanco y sencillo, aunque para las sillas de comedor se eligió el famoso diseño de los Eames en color negro, con el fin de romper con la hegemonía del blanco. Otro detalle interesante lo encontramos es el frente de la zona cocción, revestido con papel vinílico que simula teselas irisadas.

Dormitorio con vestidor
En la zona posterior de la vivienda, se encuentra el dormitorio con su propio vestidor, un pequeño walk-in closet, de 3,60 m2. La superficie del dormitorio, de 14 m2, la ocupa una cama de 180 x 200 cm, con dos mesillas a los lados, y poco más. Hay varios elementos decorativos que se repiten en toda la vivienda, y que da armonía estética a la decoración. Por ejemplo, el papel pintado que se ha utilizado para revestir la entrada del vestidor y una de las paredes de la habitación es el mismo que el utilizado en el salón y la cocina, pero con los colores invertidos.

Carpintería a medida
Otro elemento que unifica la decoración son los elementos de carpintería hechos a medida, a base de listones de madera de pino con barniz natural, que también se emplearon para hacer el cubo de la entrada. En el dormitorio se utilizaron para hacer el frente del cabecero, que va de pared a pared, y el soporte donde se encastró el televisor, frente a la cama.

Cuarto de baño y aseo
La eficiente distribución de este piso permitió realizar un cuarto de baño y un aseo de invitados, algo muy recomendable si se tiene espacio suficiente. Ambos espacios comparten materiales similares, como las baldosas rectangulares con los cantos biselados. En la zona de ducha, no obstante, se colocaron las mismas baldosas decorativas, con dibujo tridimensional, que se pusieron en la entrada de la casa.

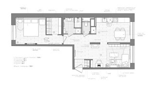
El plano de distribución
Para los que quieran saber más sobre la distribución de este pequeño piso, aquí les dejamos el plano de esta reforma, realizada por nuestro siempre admirado equipo INT2Arquitecture
El salón y la cocina con comedor están ubicados hacia el exterior de la vivienda, en un amplio espacio de 36 metros cuadrados y divididos por un tabique con dos vanos, de manera que ambas zonas están comunicadas visualmente pero, a la vez, delimitadas. La decoración, joven y funcional, se basó en colores claros y naturales: blanco, gris piedra y beige arena, con suelo y mobiliario de madera clara, lo que potencia la calidez. Unos toques de color en tapicerías y adornos alegran el resultado final.
La entrada
Una de las claves de esta reforma ha sido el aprovechamiento máximo de los espacios como zona de almacén. Para la entrada, por ejemplo, se realizó una especie de cubo de listones de madera, que hace de esta pequeña zona un espacio independiente para recibir al visitante. Aquí, además, se realizó un armario a la vista, para colgar los abrigos, y el suelo se revistió de baldosas decorativas con el objetivo de darle un carácter personal y único al vestíbulo.

Tabiques divisorios
En esta imagen se puede apreciar claramente la función que tienen los tabiques entre el salón y la cocina. Son elementos divisorios, pero que permiten la comunicación visual entre los espacios. El tabique más pequeño funciona también como elemento decorativo, revestido con un papel pintado en tono azul grisáceo, que se repite también en la pared del comedor. Del lado del salón se colocó un mueble antiguo, y en el lado de la cocina se realizó un mural con pintura de pizarra imantada.

Cocina con comedor
Al ser sólo una pareja, se decidió prescindir del tradicional comedor, y colocar una mesa en la cocina, que contaba con suficiente espacio. No obstante, se le quería dar cierto relieve decorativo, por lo que la pared donde se encuentra se revistió con papel pintado para diferenciar esta zona de la de cocción. Todo el mobiliario es blanco y sencillo, aunque para las sillas de comedor se eligió el famoso diseño de los Eames en color negro, con el fin de romper con la hegemonía del blanco. Otro detalle interesante lo encontramos es el frente de la zona cocción, revestido con papel vinílico que simula teselas irisadas.

Dormitorio con vestidor
En la zona posterior de la vivienda, se encuentra el dormitorio con su propio vestidor, un pequeño walk-in closet, de 3,60 m2. La superficie del dormitorio, de 14 m2, la ocupa una cama de 180 x 200 cm, con dos mesillas a los lados, y poco más. Hay varios elementos decorativos que se repiten en toda la vivienda, y que da armonía estética a la decoración. Por ejemplo, el papel pintado que se ha utilizado para revestir la entrada del vestidor y una de las paredes de la habitación es el mismo que el utilizado en el salón y la cocina, pero con los colores invertidos.

Carpintería a medida
Otro elemento que unifica la decoración son los elementos de carpintería hechos a medida, a base de listones de madera de pino con barniz natural, que también se emplearon para hacer el cubo de la entrada. En el dormitorio se utilizaron para hacer el frente del cabecero, que va de pared a pared, y el soporte donde se encastró el televisor, frente a la cama.

Cuarto de baño y aseo
La eficiente distribución de este piso permitió realizar un cuarto de baño y un aseo de invitados, algo muy recomendable si se tiene espacio suficiente. Ambos espacios comparten materiales similares, como las baldosas rectangulares con los cantos biselados. En la zona de ducha, no obstante, se colocaron las mismas baldosas decorativas, con dibujo tridimensional, que se pusieron en la entrada de la casa.

El plano de distribución
Para los que quieran saber más sobre la distribución de este pequeño piso, aquí les dejamos el plano de esta reforma, realizada por nuestro siempre admirado equipo INT2Arquitecture
Para más información visiten: Int2 Architecture
Vía: decoratrix




No hay comentarios:
Publicar un comentario