Durante dos años trabajamos codo a codo con los clientes, una familia de 5 integrantes, con quienes buscaron renovar este deteriorado espacio, rescatando en lo posible la memoria del lugar y a su vez logrando un espacio cómodo, fresco, luminoso y con una distribución de áreas públicas y privadas que permitieran espacios íntimos y zonas agradables que permitiesen el encuentro familiar e invitasen a pasar la mayor parte del tiempo.
Los habitantes de la casa, una familia ítalo-española que ama la cocina, les planteó como desafío que ésta debía ser el espacio más importante, el “cuore” de la casa. La misión fue diseñar una cocina que estuviera integrada al salón y comedor, pero al mismo tiempo, separada a través de una barrera permeable que permitiese, desde dentro, quedar conectado visualmente con el resto de la vivienda.
Por ello, el diseño de la cocina se pensó como un cubo de mamparas de hierro industrial y cristal con aperturas en 3 de sus lados. El interior gira en torno a una mesa central de mármol y madera, recuperada del mobiliario que sus antiguos propietarios dejaron en la casa.
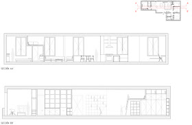
Las habitaciones de la casa están distribuidas por alas: en el ala oriente se encuentra la habitación principal y baño en suite, alejada de los demás recintos. Mientras que, las tres habitaciones de los hijos, el baño compartido y una zona de lavandería se encuentran en el ala poniente. Ambas zonas quedan separadas por los espacios comunes de salón, comedor y cocina.
La altura de la casa les permitió liberar un espacio intermedio, un pequeño altillo para ver películas, leer o alojar invitados. Su manera de darle un reconocimiento y una presencia a las pocas antigüedades que todavía quedaban en la casa, fue a través de la restauración de piezas como las fallebas de las ventanas, las chimeneas y las puertas. A través de un delicado trabajo, quitaron las capas de pintura de esmalte que tenían las puertas hasta dejar su madera original de roble, a la vista y al natural, lo mismo hicieron con las fallebas de las ventanas y las manillas de bronce de las puertas. Las chimeneas fueron limpiadas y sometidas a un tratamiento en base a ceras y barnices para dejarlas relucientes, pero dejando sus pequeñas quebraduras debido al paso del tiempo, a la vista.
Las habitaciones de la casa están distribuidas por alas: en el ala oriente se encuentra la habitación principal y baño en suite, alejada de los demás recintos. Mientras que, las tres habitaciones de los hijos, el baño compartido y una zona de lavandería se encuentran en el ala poniente. Ambas zonas quedan separadas por los espacios comunes de salón, comedor y cocina.
La altura de la casa les permitió liberar un espacio intermedio, un pequeño altillo para ver películas, leer o alojar invitados. Su manera de darle un reconocimiento y una presencia a las pocas antigüedades que todavía quedaban en la casa, fue a través de la restauración de piezas como las fallebas de las ventanas, las chimeneas y las puertas. A través de un delicado trabajo, quitaron las capas de pintura de esmalte que tenían las puertas hasta dejar su madera original de roble, a la vista y al natural, lo mismo hicieron con las fallebas de las ventanas y las manillas de bronce de las puertas. Las chimeneas fueron limpiadas y sometidas a un tratamiento en base a ceras y barnices para dejarlas relucientes, pero dejando sus pequeñas quebraduras debido al paso del tiempo, a la vista.
Para más información visiten: Camila Kuncar, Ignacio Aguado Arquitectos























No hay comentarios:
Publicar un comentario